Kit Klappenstütze/Klappenhalter Agile Flap, 7,8-13kg, Stahl Kunststoff, Anthrazitgrau
Lieferzeit: 2 Wochen
Komplettset für Klappenhöhe für Doppelflügeltüren, ideal zum Einbau in Küchen- und Wohnmöbel. Er zeichnet sich durch seine reibungslose und präzise Arbeitsweise aus. Dank des einfachen Clipsystems wird kein Werkzeug für die Demontage der Tür benötigt.
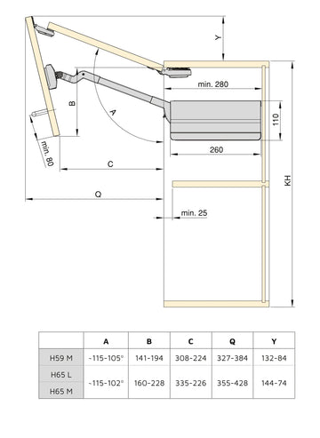
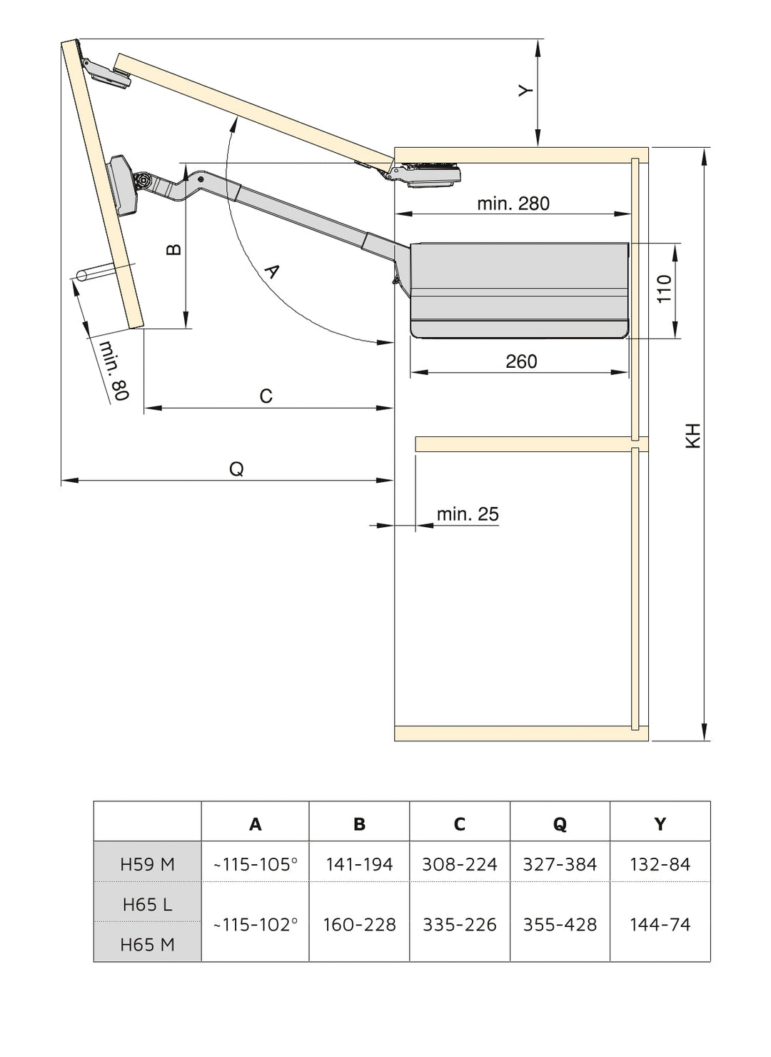
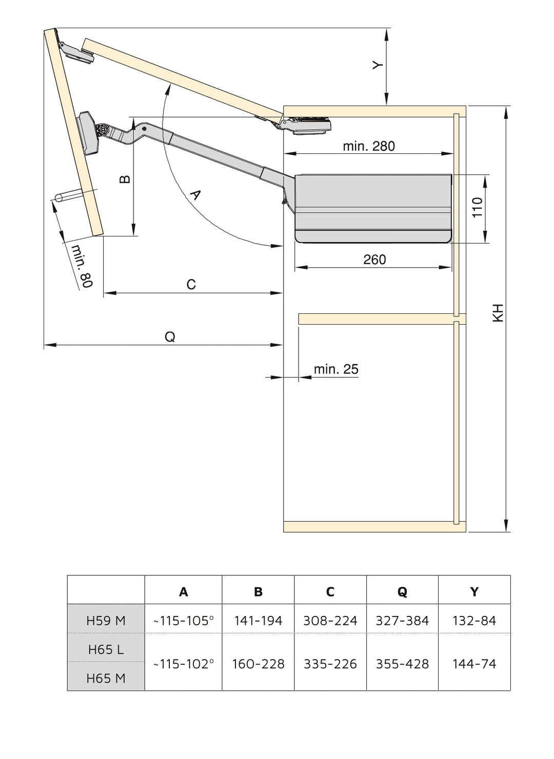
Ausgelegt für zwei Türmodule mit Höhen zwischen 590 und 729mm, einer maximalen Breite von 1200mm. Wenn Ihre Tür weniger wiegt, können Sie einen Mechanismus anstelle von beiden verwenden.
Bei Modulen mit zwei symmetrischen Türen benötigt nur die obere Tür eine Scharniermontage. Er verfügt über drei Einstellungen: Einstellung der Mechanismuskraft, tridimiensionale Türposition ±2mm und Soft-Close-Geschwindigkeit.
Er ist in mehreren Kraftbereichen erhältlich, um je nach Ergebnis der Berechnungsformeln einen größeren Bereich von Türgrößen und Gewichten abzudecken.
DIE COMPASS STÄRKE BERECHNEN
F = H x (Türgewicht + 2*Gewicht Türgriff)
F = Stärke.
H = Türhöhe in mm.
Türgewicht = Türgewicht in kg.
Gewicht Türgriff= Gewicht Türgriff in kg.
Der Bausatz enthält 2 obere Topfscharniere, 2 untere Türscharniere ohne Topf, Ergänzungen und Türhaken für Scharniere und Mechanismen, Armabdeckungen Topf, Montageschrauben.
- Komplettset für Kompass für doppelte Hubtüren mit einem Gewicht zwischen 7,8 - 13 kg.
- Für zweitürige Module mit Höhen zwischen 590 und 649 mm und einer maximalen Breite von 1200 mm.
- Werkzeuglose Demontage der Tür durch das einfache Clip-System.
- Er verfügt über drei Einstellungen: Einstellung der Mechanismuskraft, dreidimensionale Türposition ±2mm und Soft-Close-Geschwindigkeit.
- Anthrazitgraue Oberfläche. Es enthält alles, was für seine Montage notwendig ist.
Emuca. In der Gruppe Emuca werden eine breite Palette an Produkten für die Möbelbranche, Schreinerarbeiten, Eisenwaren und Heimwerkerarbeiten gefertigt. Die perfekte Marke für Möbelteile und DIY. Top Qualität zu fairen Preisen.
Kostenloser Versand
Je nach Artikel, erfolgt der Versand per Paketdienst oder Spedition. Der Versand innerhalb Deutschlands ist kostenlos. Das gleiche gilt selbstverständlich auch für den Rückversand. Versand & Lieferung.
Paketversand
Ihre Bestellung wird per Paketdienstleister an Ihre Wunschadresse geliefert. Diese geben Sie am Ende Ihres Einkauf in der Kaufabwicklung an. Selbstverständlich darf diese auch von Ihrer Rechnungsanschrift abweichen.
Speditionsversand
Große Möbelstücke oder schwere Artikel werden von uns per Möbelspedition versendet. Unsere Spedition setzt sich zur Avisierung vorher mit Ihnen in Verbindung. Dies erfolgt telefonisch oder per email.
Ganz entspannt
Einige von uns ausgewählte Artikel werden, per 2-Mann Service, bis an Ihren Wunschort transportiert. Kein Stress beim Tragen und völlig entspannt! Bitte nehmen Sie hierzu Kontakt mit uns auf.



















































































































































